VZug Adora 60SVI, Grossraum-Geschirrspüler, GS60SZGVi, 4108060255
INKLUSIVE 5 JAHRE GARANTIE* (für die Länder Deutschland, Dänemark, Tschechische Republik, Polen, Österreich, Frankreich, Luxemburg, Belgien, Niederlande und Schweiz) Bei diesem Gerät handelt es sich um eine für den europäischen Markt bestimmte Version und nicht über ein Re-Import-Gerät mit Schweizer Anschluss-/ und Ausstattungs-Spezifikation.
Ausstattung
- Geräteart: Geschirrspülmaschine
- vollintegrierbar
- Breite: 60 cm
- Grossraum
Merkmale
- Premium Swiss Quality
Innovationsstarke, qualitativ hochstehende Produkte auf dem höchstmöglichen technologischen Stand zu entwickeln und zu produzieren, hat in der Schweiz Tradition. Dem 1913 gegründete Familienunternehmen V-ZUG AG gelingt es immer wieder, sich in der Branche zu profilieren. Es ist bekannt dafür, regelmässig Weltneuheiten zu entwickeln und auf den Markt zu bringen. Mit diesen Meilensteinen setzt V-ZUG in der Branche immer wieder nachhaltige und edle Zeichen.
- Zusätzliche Gläserreihe
- Multiflex-Zone
- V-ZUG Oberkorb mit Mehrfach-Höhenverstellung
- Massgedecke: 13
- Warmwasseranschluss
- LED Nachfüllanzeige Salz / Glänzer
- Glanzmittel-Dosierautomatik
- Aquastop
- Grosser Besteckkorb
- Kleiner Besteckkorb
- V-ZUG Vario-Oberkorb
Mit jeweils nur einem Handgriff lässt sich der Oberkorb
auch beladen in vier verschiedene Positionen bringen,
z.B. besonders hohe Gläser. Diese exklusive Vierfach-
Höhenverstellung ermöglicht unbegrenzte Einfüllmöglichkeiten.
- V-ZUG Trübungssensor
- Gerätehöhe verstellbar: 116.0 mm
- Salzverbrauch pro Spülung: 9,0 g
- V-ZUG Easy-Nadelverlängerungen
- Einfacher Hocheinbau
Bedienung & Anzeigen
Digitalanzeige
Drucktasten-Bedienung
FunctionLight
Funktionen
- V-ZUG Automatik-Programm

"Tip and go": Das Automatik-Programm fühlt selber, was Ihr Geschirr braucht,
und Sie sparen dabei erst noch bis zu 30 % Wasser, Strom und Regeneriersalz.
Die Programmdauer wird automatisch gesteuert und beträgt zwischen 65 und 115 Min.
(Die tatsächliche Dauer kann gegenüber den obigen Angaben abweichen
– je nach Verschmutzungsgrad.)
- Kurz
- Glas
- Intensiv-Programm
- V-ZUG Fondue-Racletteprogramm

Das typische Schweizer Programm für den Schweizer Markt
vom Schweizer Hersteller! Caquelons und Raclettepfännchen werden ohne
Einweichen perfekt sauber. Das Programm ist dank aktiver Aufweich-Phase
auch als Super-Intensiv-Programm geeignet. Das Vorspülen von eingebrannten
Auflauf- bzw. Gratinformen gehört der Vergangenheit an.
- V-ZUG Hygiene

-Programm
- Vorspülen
- V-ZUG Programm Teilbeladung

Das Programm wird einer geringeren Beladung angepasst.
Die Wassermenge wird deutlich reduziert, es werden zwischen 1 bis 6
Liter Wasser gespart. Die Programmzeit verkürzt sich um bis zu 36 Minuten.
- Optimal für Tabs
- Trübungssensor
- Klarspülerdosierung
- Energiesparen
- Automatischer Türaufstosser
- Startaufschub
- V-ZUG Kindersicherung

Die Kindersicherung soll ein unbeabsichtigtes Einschalten verhindern.
Energiewerte
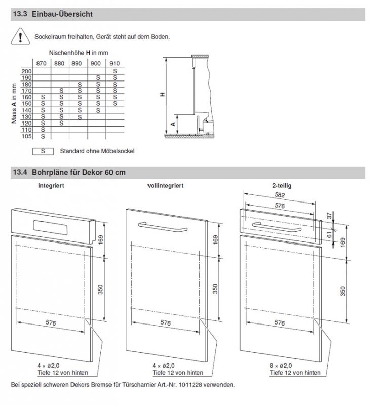
Maße
Nischenhöhe: 851 mm
Nischenhöhe max.: 967 mm
Nischenbreite: 600 mm
Nischenbreite max.: 600 mm
Nischentiefe: 580 mm
Gerätehöhe: 848 mm
Gerätehöhe max.: 964 mm
Gerätebreite: 596 mm
Gerätetiefe: 550 mm
Tiefe Gerät bei geöffneter Tür: 1222 mm
Tiefe Gerät einschließlich Wandabstand: 580 mm
Leergewicht: 51 kg
* Hinweise:
Wird in der Artikelbeschreibung eine Garantie ausgewiesen, bleiben Ihre gesetzlichen Gewährleistungsrechte uns gegenüber hiervon unberührt. Ist die Kaufsache mangelhaft, können Sie sich daher in jedem Fall an uns halten, unabhängig davon, ob der Garantiefall eintritt und ob die Garantie in Anspruch genommen wird oder nicht.
In den Ländern Dänemark, Tschechische Republik, Polen, Österreich, Frankreich, Luxemburg, Belgien, Niederlande und Schweiz werden im Schaden- oder Reparaturfall im Rahmen der 5 Jahres-Garantie die Kosten maximal in derjenigen Höhe übernommen, wie die Schadenhöhe oder die Reparaturkosten entstanden wären, wenn sie in Deutschland stattgefunden hätten.